Ihr Zuhause auf einen Blick
Energieeffizient (KfW 40), ohne fossile Energieträger, barrierefrei, Finanzierung möglich.
Zeitlos modernes Mehrfamilienhaus in Wittnau.
Inmitten einer wohltuend ländlichen Atmosphäre umgeben von Reb- und waldreichen Hängen liegt die Gemeinde Wittnau, die mit über 1.500 Einwohnern zu einem der höchstgelegenen Weinorte Badens zählt. Wittnau ist ein staatlich anerkannter Erholungsort im Breisgau und liegt ca. sieben Kilometer südlich von Freiburg in der Mitte des Hexentals. Dieses erstreckt sich von Freiburg zwischen dem 644 m hohen Schönberg und den Westhängen des Hochschwarzwaldes über Wittnau bis nach Ehrenstetten. Gelegen in dieser einmaligen Natur hat der Ort einen ganz besonderen Charme und ist ein attraktiver Lebensmittelpunkt.
Derzeit entsteht in der Schönbergstraße ein Mehrfamilienhaus mit Tiefgarage. Zu jeder Wohnung gehört eine Terrasse mit privatem Garten oder eine Loggia, wo Sie sich Ihre persönliche Wohlfühloase schaffen und die warmen Tage mit herrlicher Aussicht auf die Täler und Hügel des Hexentals genießen können.
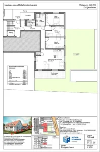
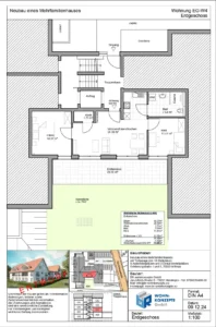
Wohnungsgrundrisse
im Untergeschoss
im Erdgeschoss
im Obergeschoss
im Dachgeschoss
Ihre Anfrage an unsSchlüsselfertig zum garantierten Festpreis.
Hochwertige Ausstattung, durchdachte Materialwahl.
Der zeitlos moderne Stil des Baukörpers setzt sich in der hochwertigen Ausstattung der Wohneinheiten fort. Durchdachte und ausgesuchte Materialien verbinden sich mit großzügig geschnittenen Fenstern und der lichterfüllten Atmosphäre zu Wohn- und Lebensräumen mit besonderem Wohlfühlambiente. Eine Videosprechanlage ermöglicht Ihnen eine hohe Sicherheit.
Komfortabel
- Ruhige und naturnahe Wohnlage im Hexental
- Angenehme Parksituation durch die Tiefgarage im Haus
- Große Loggia oder Terrasse, teilweise mit privaten Grünflächen
- Durchdachte Grundrisse für eine optimale Raumausnutzung
- Lichtdurchflutete Wohnräume durch viele Fenster
- Aufzug im Haus für eine barrierefreie Verbindung der Wohnungen mit dem Untergeschoss und dem Hauseingang
Hochwertig
- Videosprechanlage
- Flächendeckende Fußbodenheizung
- Elektrisch betriebene Rollläden
- Bodengleiche Duschen
Nachhaltig
- Wertvolle und beständige Baumaterialien
- Verwendung und Verarbeitung natürlicher Baustoffe
- Photovoltaikanlage
- Nachhaltige Wärmepumpe mit Erdkollektorsystem ohne fossilen Brennstoff
- Effiziente Bauweise (KfW 40)
- Verwendung des Regenwassers als Brauchwasser
- Zusammenarbeit mit eigenen und regionalen Unternehmen

Behaglich und effizient - KfW 40 Wohnhaus.
Perfekt für Sie angepasst – auch bei der Finanzierung.
Gerne lassen wir für Sie prüfen, welche individuellen Förderungen und Finanzierungsmöglichkeiten Ihnen den Weg zur Eigentumswohnung erleichtern.
Von der Idee zum fertigen Wohnhaus.
Wittnau - Ein Ort zum Wohlfühlen.
Die Lage von Wittnau ist ein idealer Ausgangspunkt für Ausflüge in das Markgräflerland, den Schwarzwald, das Elsass oder in die Schweiz.
Im Frühjahr und Sommer ist die Gegend rund um Wittnau eine grüne Oase mit bunten Blüten und blökenden Schafen, im Winter Ski-, Langlauf- und Snowboard-Paradies mit zahlreichen Abfahrten und zauberhaften Schneelandschaften. Von der Haustüre aus können Sie zu Fuß den naheliegenden 644 m hohen Schönberg und seine Umgebung erkunden, bei der „Hexentalrunde“ herrliche Ausblicke ins Hexental genießen oder in knapp vier Stunden z. B. den 1.284 m hohen Schauinsland erwandern.
Was für Wanderer zutrifft gilt auch für Radfahrer – es gibt ein gut ausgebautes Radwegenetz mit unzähligen Möglichkeiten die Regio mit dem Fahrrad zu erkunden. Darüber hinaus bietet Wittnau ein vielfältiges aktives Vereinsleben und über das ganze Jahr hinweg verschiedene Veranstaltungen wie z. B. die Sportwoche, Jazz- und klassische Konzerte sowie Kleinkunst.
Einkaufsmöglichkeiten für den alltäglichen Bedarf finden Sie nur wenige Minuten von Wittnau entfernt, z. B. im Beckesepp in Sölden oder in einem der Supermärkte in Merzhausen. Hofläden und ein wöchentlich stattfindender Wochenmarkt in Wittnau ergänzen das Angebot. Die Restaurants im Ort laden zum Verweilen ein und verwöhnen Sie mit kulinarischen Köstlichkeiten.
Die Gemeinde Wittnau fungiert als Träger der Kindertageseinrichtung Wittnau mit Tageskinder-, Kleinkinder- und Waldkindergruppe sowie der Franz-Xaver-Klingler-Grundschule. Weiterführende Schulen, Hochschulen und eine Universität finden Sie z. B. in Freiburg oder Bad Krozingen.
Die medizinische Versorgung ist durch diverse Ärzte und Fachärzte sichergestellt. Apotheken finden Sie in den umliegenden Gemeinden und die nächstgelgenen Krankenhäuser befinden sich in Freiburg und Bad Krozingen.
Über die Buslinien der Südbaden-Bus ist Wittnau mit Freiburg und Bad Krozingen verbunden. Die Linie verkehrt auf der Landesstraße L122 von Freiburg nach Ehrenkirchen. Die Autobahnanschlüsse Freiburg-Süd und Freiburg-Mitte an die A5 sind jeweils ca. 13 km entfernt.































