mit 6 Wohneinheiten
Ihr Zuhause auf einen Blick
Zuhause in Kenzingen - Perle im Breisgau.
Eine Immobilie in ruhiger und idyllischer Umgebung.
Derzeit entsteht im Einfangweg in Kenzingen ein Mehrfamilienhaus in zeitlos moderner Architektur. Das Gebäude umfasst sechs Wohneinheiten. Zu jeder Wohnung gehört eine Terrasse mit privatem Garten, ein Balkon oder eine Dachterrasse, wo Sie die warmen Tage genießen und sich Ihre persönliche Wohlfühloase schaffen können.
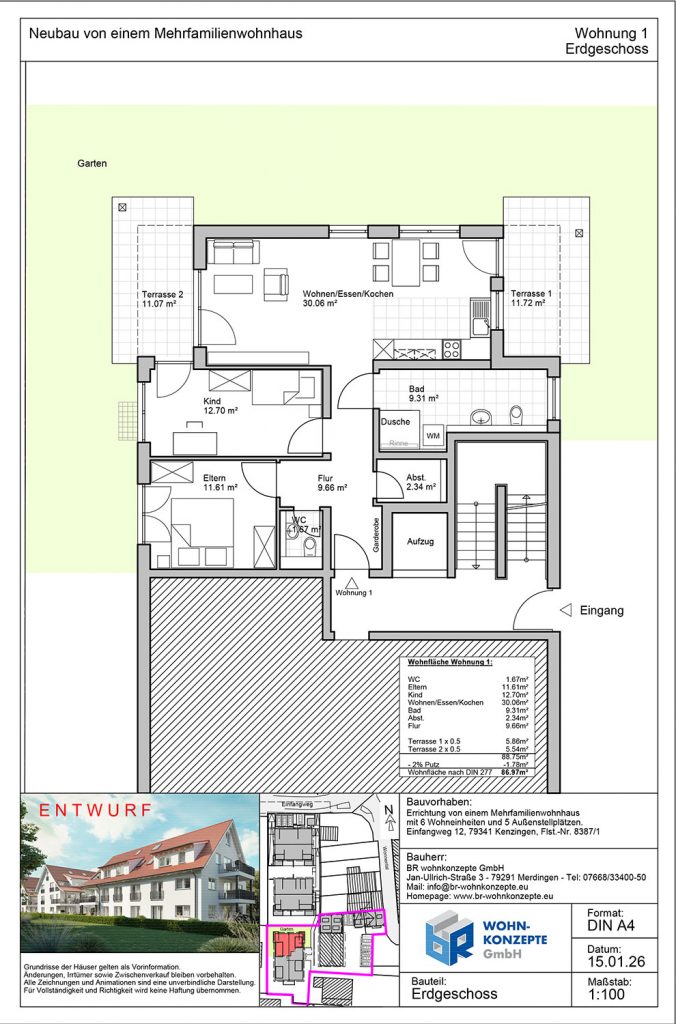
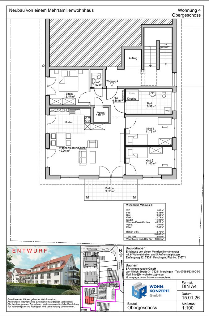
Wohnungsgrundrisse
im Erdgeschoss
im Obergeschoss
im Dachgeschoss
Ihre Anfrage an unsSchlüsselfertig zum garantierten Festpreis.
Hochwertige Ausstattung, durchdachte Materialwahl.
Der zeitlos moderne Stil des Baukörpers setzt sich in der hochwertigen Ausstattung der Wohneinheiten fort. Durchdachte und ausgesuchte Materialien verbinden sich mit großzügig geschnittenen Fenstern und der lichterfüllten Atmosphäre zu Wohn- und Lebensräumen mit besonderem Wohlfühlambiente.
Eine Videosprechanlage ermöglicht es Ihnen Ihre Besucher genau zu sehen und mit Ihnen zu sprechen, wodurch eine hohe Sicherheit gewährleistet wird.
Komfortabel
- Ruhige und naturnahe Wohnlage im Wonnental
- Gut erreichbare Außenstellplätze
- Große Dachterrassen, Balkone und Terrassen,
teilweise mit privaten Grünflächen - Durchdachte Grundrisse für eine optimale Raumausnutzung
- Lichtdurchflutete Wohnräume durch viele Fenster
- Aufzug im Haus für eine barrierefreie Verbindung der Wohnungen mit dem Untergeschoss und dem Hauseingan
Hochwertig
- Videosprechanlage
- Flächendeckende Fußbodenheizung
- Elektrisch betriebene Rollläden
- Bodengleiche Duschen
Nachhaltig
- Wertvolle und beständige Baumaterialien
- Verwendung und Verarbeitung natürlicher Baustoffe
- Photovoltaikanlage
- Grundwasserwärmepumpe
- Effiziente Bauweise (KfW 55)
- Zusammenarbeit mit eigenen und regionalen Unternehmen

Behaglich und effizient - KfW 55 Wohnhaus.
Die Wärmeerzeugung erfolgt über eine Grundwasserwärmepumpe, welche eine wegweisende und zukunftssichere Energiequelle für Ihr neues Zuhause ist. Die Wärmeverteilung wird über eine Flächenheizung (Fußbodenheizung) realisiert. Diese Heizungsart kombiniert einerseits einen hohen Komfort mit niedrigen Heizkosten und bietet andererseits, durch das Einsparen sämtlicher Heizkörper, eine hohe Flexibilität bei der Möblierung.
Eine Photovoltaikanlage sorgt für eine dezentrale und moderne Energieversorgung. Das Wohnhaus wurde unter Berücksichtigung des KfW 55 Standards erstellt.
Perfekt für Sie angepasst – auch bei der Finanzierung.
Gerne lassen wir für Sie prüfen, welche individuellen Förderungen und Finanzierungsmöglichkeiten Ihnen den Weg zur Eigentumswohnung erleichtern.
Kenzingen - Ein Wohnort mit Lebensqualität.
Kenzingen ist eine historische Kleinstadt im nördlichen Breisgau. Mit ihren vier Ortschaften und ca. 10.000 Einwohnern gehört die Stadt zum Landkreis Emmendingen. Am Rande der Vorbergzone des Schwarzwaldes, eingebettet in eine vom Klima begünstigte jahrhundertealte Kulturlandschaft, inmitten von Wald, Wiesen und Reben, bietet die Stadt eine Vielzahl an Möglichkeiten und ist ein attraktiver Lebensmittelpunkt. Weinbau und Landwirtschaft prägen die Umgebung genauso wie das geschäftige Treiben in der Stadt. Die historische Altstadt ist denkmalgeschützt mit vielen besonders geschützten Einzelgebäuden und Kleindenkmälern. Die reizvolle Lage im Dreiländereck Deutschland – Frankreich – Schweiz eröffnet eine Vielzahl an Möglichkeiten.
Vereine und freie Kulturträger bieten in Kenzingen ein umfangreiches Freizeit- und Kulturangebot für alle Generationen. Zu den Highlights zählen zum Beispiel das historische Altstadtfest, das international besetzte Holzbildhauersymposium oder die alemannische Fasnet. Zudem ist die Stadt ein idealer Ausgangspunkt für verschiedene Unternehmungen wie Radtouren, Wanderungen, Kanu-Touren, zum Baden und vieles mehr – ganz egal ob Sie es lieber sportlich oder gemütlich möchten.
Die Stadt Kenzingen bietet zahlreiche Einkaufsmöglichkeiten. Sie finden Geschäfte für den alltäglichen Bedarf sowie Mode-, Schuh- und Schmuckgeschäfte, die zum Bummeln einladen. Verschiedene Hofläden und ein Wochenmarkt ergänzen das Angebot. Die zahlreichen Cafés und Restaurants laden zum Verweilen ein.
Kenzingen verfügt über Kleinkindbetreuung, Kleinkindgruppen sowie verschiedene Kindergärten. Weiter befinden sich in der Stadt je eine Grundschule, Hauptschule und ein Gymnasium.
Die medizinische Versorgung ist durch diverse Ärzte, Fachärzte und Apotheken sichergestellt. Das nächstgelegene Krankenhaus befindet sich in Emmendingen.
Kenzingen ist jeweils drei Kilometer vom Autobahnanschluss Herbolzheim im Norden und Riegel im Süden entfernt. Nach Freiburg sind es ca. 30 km. Am Bahnhof Kenzingen halten zahlreiche Nahverkehrszüge und über die Busverbindungen erreichen Sie die umliegenden Orte sowie Emmendingen und Herbolzheim.























